Вы находитесь в разделеЛот N45769
Лот N45769
Тип: Квартиры
Тип сделки: продам
|
Информация о квартире
|
| Количество комнат в квартире: |
2 |
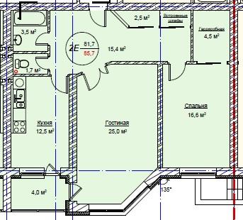
| Общая площадь: |
87 |
| Площадь кухни: |
12.5 |
| Жилая площадь: |
41.6 |
| Тип дома: |
кирпичный |
| Этаж: |
1 |
| Всего этажей: |
3 |
| Наличие балкона: |
есть |
| Стоимость, руб. : |
5 568 000 |
| Дата обновления объявления: |
20.08.2015 |
Фото объекта недвижимости:
 
|
|
|
Контактная информация
|
|
8 (916) 388-22-98
|
|
Месторасположение
|
Дубна/БВ
Школьная 10Б |
|
Дополнительная информация
|
| 2 комнатная квартира в новостройке, район Большая Волгаю
Общая площадь: 87 м2, жилая: 41,6 м2. Кухня 12,5 м2. Лоджия 4 м2. Санузел раздельный. Есть гардеробная. Стены выровнены, под чистовую отделку. Потолки высокие, 2,80 м. Окна - ПВХ. Выход на балкон из комнаты и из кухни.
Внутри установлены: розетки; отводы под ванну, раковину и унитаз; полотенцесушитель; обогревательные батареи. Возможно узаконить свою планировку и начать ремонт в своей квартире прямо сейчас.
Этаж 1/3. Предусмотрен домофон, есть пандусы. Около дома развитая инфраструктура: детские площадки, школа, магазины, предприятия бытового обслуживания, развлекательные центры, бассейн, рынок, аптеки. Недалеко лес, река Волга.
Дом сдан. Показы осуществляются по договоренности. Звоните! |
|
|