Вы находитесь в разделеЛот N45804
Лот N45804
Тип: Квартиры
Тип сделки: продам
|
Информация о квартире
|
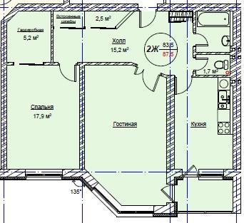
| Количество комнат в квартире: |
2 |
| Общая площадь: |
87.5 |
| Площадь кухни: |
12.5 |
| Жилая площадь: |
42.9 |
| Тип дома: |
кирпичный |
| Этаж: |
1 |
| Всего этажей: |
3 |
| Наличие балкона: |
есть |
| Стоимость, руб. : |
5 600 000 |
| Дата обновления объявления: |
20.08.2015 |
Фото объекта недвижимости:
  
|
|
|
Контактная информация
|
|
8 (916) 388-22-98
|
|
Месторасположение
|
Дубна/БВ
Школьная 10Б |
|
Дополнительная информация
|
| 2 комнатная квартира в новостройке, район Большая Волга
Общая площадь: 87,5 м2 (с учетом балкона), жилая: 42,9 м2. Кухня 12,5 м2. Санузел раздельный. Есть просторная гардеробная. Стены выровнены, под чистовую отделку. Потолки высокие, 2,80 м. Окна - ПВХ. Выход на балкон из комнаты и из кухни.
Внутри установлены: розетки; отводы под ванну, раковину и унитаз; обогревательные батареи. Возможно узаконить свою планировку и начать ремонт в своей квартире прямо сейчас.
Этаж 1/3. Предусмотрен домофон, есть пандусы. Около дома развитая инфраструктура: детские площадки, школа, магазины, предприятия бытового обслуживания, развлекательные центры, бассейн, рынок, аптеки. Недалеко лес, река Волга.
Дом сдан, ставится на кадастровый учет. Показы осуществляются по договоренности. Звоните! |
|
|